Полифункциональный жилой проект с большими зелеными зонами у Domino
Ružinov, Bratislava Region, Slovakia
От застройщика
Все объекты без комиссии агентства
Каждая сделка включает полное юридическое сопровождение
Работа с иностранными клиентами
Сопровождение иностранных клиентов
Бесплатные консультации по всем вопросам
Статус застройки: Построен Застройщик: Haberl Real Estate Количество этажей: 9 Ориентировочная дата сдачи: 2022 - 2025
5 фотографий

Информация о сотруднике

img
Alex Maksimčuk
img
Alex Maksimčuk
flag
flag
flag
flag
Генеральный директор, специалист по недвижимости и финансированию
+421903717975 alex@togetthere.info Написать агенту
img
Viktoria Antonuck
img
Viktoria Antonuck
flag
flag
Специалист по административным вопросам иммиграции
viktoriia@togetthere.info Написать агенту

Мы предоставим вам следующие услуги:

image
Тур перед покупкой недвижимости
Вы приезжаете к нам на 2 дня. Мы лично сопровождаем вас, показываем объекты, соответствующие вашим требованиям, и консультируем вас по всем вопросам на протяжении всего визита.
image
Индивидуальный дизайн и управление недвижимостью
Мы можем оформить вашу квартиру в соответствии с вашими пожеланиями и потребностями. При необходимости — организуем сдачу в аренду с круглосуточной поддержкой на словацком языке для ваших арендаторов.
image
Помощь в оформлении ипотеки
Если вы соответствуете критериям как резидент Словакии, гражданин ЕС или страны ОЭСР, мы поможем вам оформить ипотеку в словацком банке на выгодных условиях.

Описание объекта недвижимости

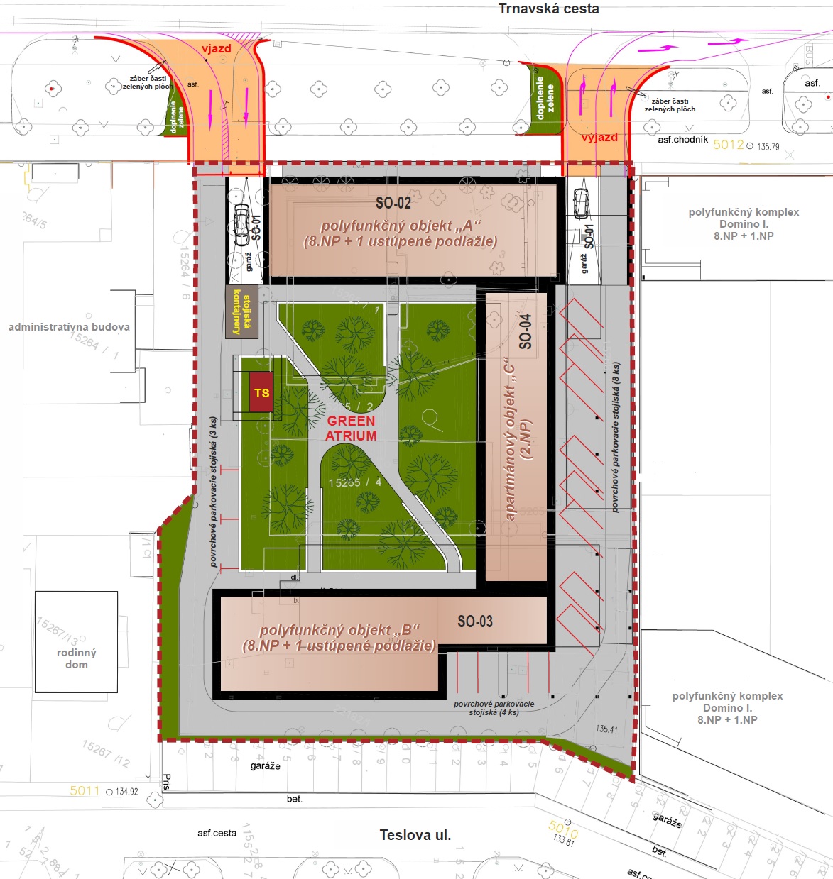
Многофункциональный проект с преобладающей жилой функцией, примыкающий к соседнему комплексу Domino. Проект рассматривается в нескольких вариантах, рекомендуется Вариант 2 с большими площадями зелени. В 2021 году произошли изменения владельцев. Первоначальным девелопером был JAGR, s.r.o.

⚠️
В некоторых случаях информация собрана из открытых источников. Все права на фотографии и материалы принадлежат застройщикам и авторам. Мы уважаем авторские права. Если вы являетесь правообладателем, мы готовы по вашему запросу удалить или откорректировать информацию.
Picture

Не нашли подходящий вариант в нашей базе? Не проблема!

Связаться с нами

Мы сотрудничаем с ведущими риелторскими агентствами в Словакии и всегда сможем найти для вас идеальный объект. Не ограничивайтесь только тем, что представлено на сайте — у нас гораздо больше!

Ранее просмотренные

Аренда
img
20 фотографий
# 115730
Sibírska, Bratislava-Nové Mesto, okres Bratislava III
€ 740
за электричество / мес. € 260
площадь
63 m2
Аренда
img
10 фотографий
# 115389
Vajnorská, Bratislava-Nové Mesto, okres Bratislava III
€ 625
за электричество / мес. € 150
площадь
36 m2
Аренда
img
11 фотографий
# 109655
Labutia, Bratislava-Petržalka, okres Bratislava V
€ 699
за электричество / мес. € 170
площадь
47 m2
Аренда
img
12 фотографий
# 107958
Antona Floreka, Bratislava-Záhorská Bystrica, okres Bratislava IV
€ 2,750
за электричество / мес. € 250
площадь
133 m2
Аренда
img
15 фотографий
# 114645
Medveďovej, Bratislava-Petržalka, okres Bratislava V
€ 750
за электричество / мес. € 150
площадь
51 m2
От застройщика
img
4 фотографии
# 18685
Статус застройки
Строится
Срок реализации
2025 - 2027

Ключевые факты о недвижимости Словакии

img
Членство в ЕС:
Словакия – часть Европейского Союза.
3-6,5%
Доход от аренды:
Чистая годовая доходность 3-6.5%.
12%
Рост стоимости:
Среднегодовой рост стоимости активов – 12%.

Свежие квартиры в Словакии каждый день

Без посредников. Актуальные предложения в Telegram

Смотреть в Telegram →