# 54436 הדפסה
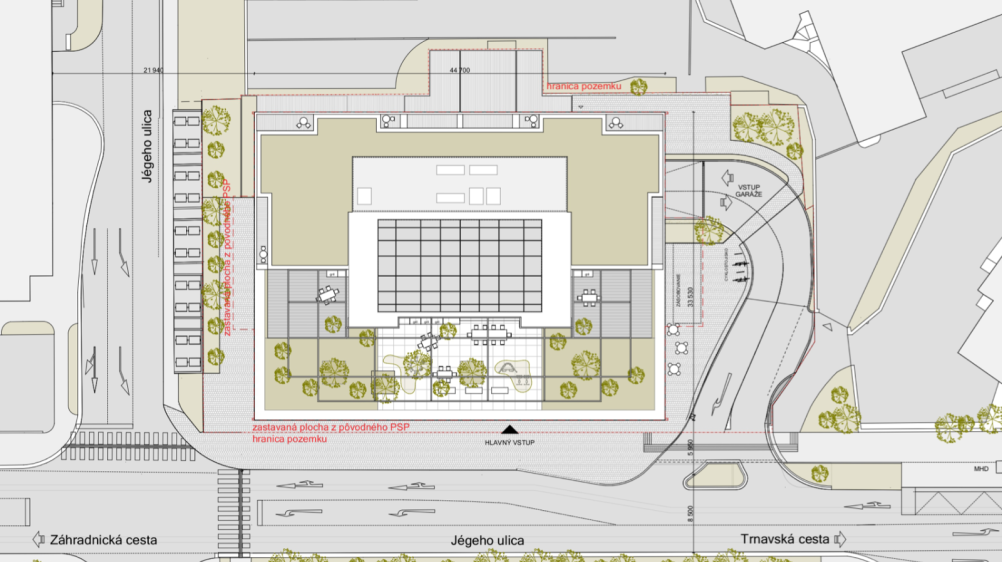
בניין דירות מוצע באתר אולם ספורט שפעל עד 2012 ובעבר נשקל כחניון
Ružinov, Bratislava Region, Slovakia
מהקבלן
כל הנכסים ללא עמלת תיווך
כל עסקה כוללת ליווי משפטי מלא
עבודה עם לקוחות מחו״ל
ליווי לקוחות מחו״ל
ייעוץ חינם בכל הנושאים
סטטוס הבנייה: בנייה יזם: Immocap מספר קומות: 6 תאריך משוער למסירה: 2024 - 2026
10 תמונות

מידע על מומחה

img
Alex Maksimčuk
img
Alex Maksimčuk
flag
flag
flag
flag
img
Viktoria Antonuck
img
Viktoria Antonuck
flag
flag
מומחית לענייני הגירה מנהליים
viktoriia@togetthere.info שלחו הודעה לסוכן

נעניק לכם את השירותים הבאים:

image
סיור לפני רכישת נכס
בואו לחוות את החוויה בעצמכם – אתם מגיעים אלינו ליומיים, ואנחנו נלווה אתכם אישית בכל שלב. נראה לכם נכסים שמתאימים בדיוק לדרישות שלכם, נענה על כל השאלות שלכם לאורך כל הביקור, ונוודא שתצאו עם תחושה ברורה ובטוחה לגבי הבחירה שלכם.
image
עיצוב אישי וניהול נכס
הדירה שלכם יכולה להיות בדיוק כמו שתמיד חלמתם – אנחנו נעצב אותה לפי הרצונות והצרכים שלכם. רוצים להשכיר? נארגן השכרה עם תמיכה 24/7 בשפה הסלובקית עבור השוכרים שלכם, כדי שהכל יעבוד חלק.
image
עזרה בקבלת משכנתא
אם אתם תושבי סלובקיה, אזרחי האיחוד האירופי או מדינות ה-OECD – אנחנו נעזור לכם לקבל משכנתא בבנק סלובקי בתנאים משתלמים, כדי שתוכלו להגשים את חלום הבית בלי דאגות מיותרות.

תיאור הנכס

מתחם רב תכליתי יוקם במקום בו שכן עד 2012 אולם ספורט. היה אמור להיות מוחלף בחניון, לאחר מכן נשקלו בנייני מגורים ואז בניין משרדים בעיקר. כיום שוב מדברים על בניין דירות.

⚠️
במקרים מסוימים המידע נאסף ממקורות פתוחים. כל הזכויות על התמונות והתוכן שייכות ליוצרים וליזמים. אנו מכבדים זכויות יוצרים, ואם אתם בעלי הזכויות, אנו מוכנים לפי בקשתכם להסיר או לתקן את המידע.
Picture

לא מצאתם נכס מתאים במאגר שלנו? אין בעיה!

צור איתנו קשר

אנחנו משתפים פעולה עם סוכנויות הנדל״ן הגדולות והמובילות בסלובקיה ויש לנו גישה לנכסים שלא תמצאו בשום מקום אחר. יחד נמצא בדיוק את הבית המושלם שמתאים לכם. מה שמופיע באתר הוא רק טעימה קטנה ממה שיש לנו להציע – ויש לנו הרבה יותר!

נצפה לאחרונה

מהקבלן
img
7 תמונות
# 14715
סטטוס הבנייה
בנייה
מועד סיום הבנייה
2024 - 2027
מהקבלן
img
3 תמונות
# 16530
סטטוס הבנייה
בנייה
מועד סיום הבנייה
2023 - 2025
מכירה
img
30 תמונות
# 10150
Klincová, Bratislava-Ružinov, Bratislava II, Bratislava Region, Slovakia
€ 449,000
אמצעי תשלום
שטח
110 m2
קומה
8
מספר חדרים
3
מהקבלן
img
6 תמונות
# 14813
סטטוס הבנייה
בנייה
מועד סיום הבנייה
2023 - 2025

עובדות מפתח על נדל"ן בסלובקיה

img
חברות באיחוד האירופי:
סלובקיה היא חלק מהאיחוד האירופי.
3-6,5%
הכנסה משכירות:
תשואה שנתית נטו של 3-6.5%.
12%
גידול בעלויות:
הצמיחה השנתית הממוצעת בערך הנכס היא 12%.